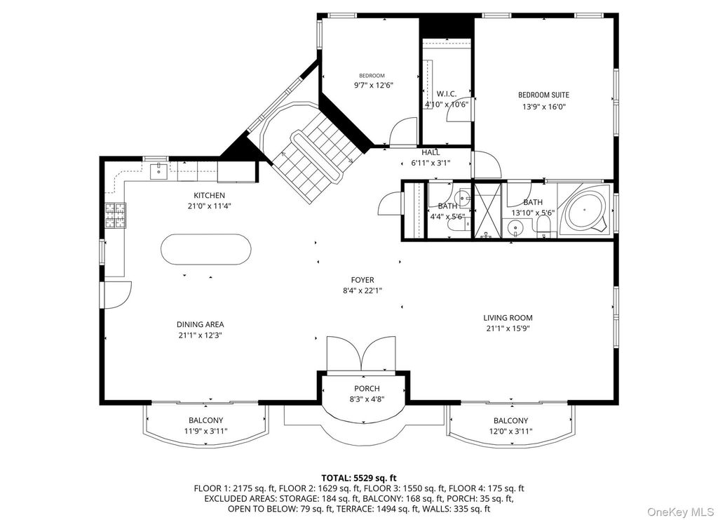
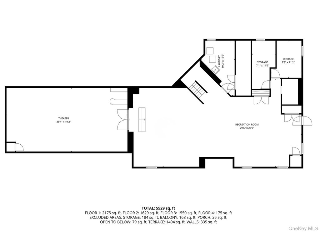
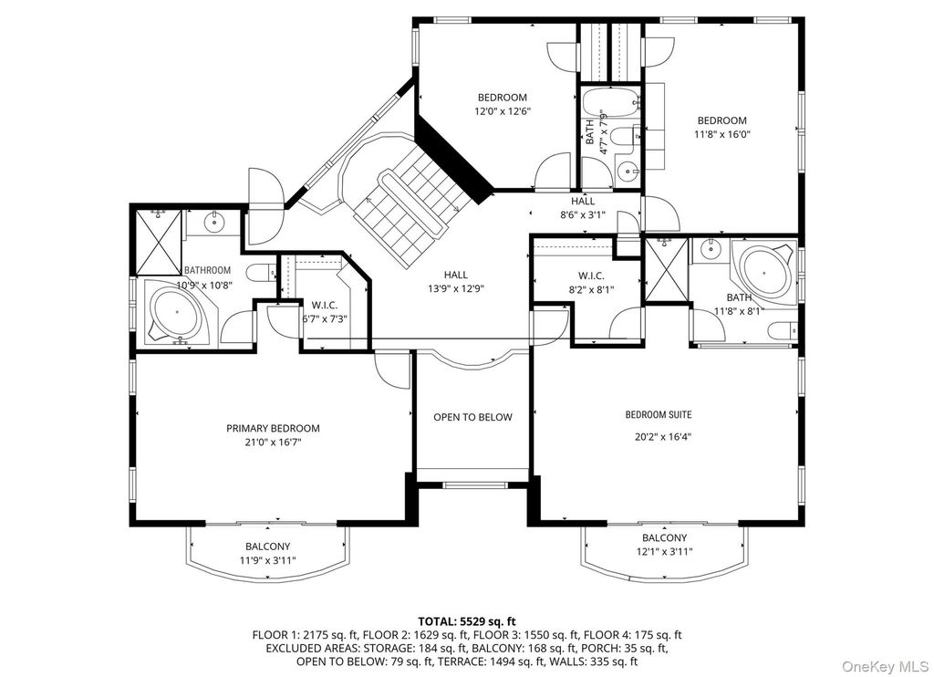
Welcome to an exceptional, custom-built Single Family Residence redefining luxury and dynamic living in prime Little Neck. This is not just a house; it is a meticulously crafted lifestyle experience featuring 3,771 square feet of executive-level living space on a prestigious corner lot. The indulgence continues below grade with a truly massive, 2,175-square-foot finished basement. This sprawling space is designed for play, featuring a home theater and convenient walk-out access, effectively blending the lower level into the property's overall entertainment layout. With a total of over 5500 sqft, 3 levels combined. Prepare to be captivated by a design focused on ultimate privacy and grand-scale entertainment. The home boasts three full bedroom suites - a rare and coveted feature - including a versatile ground-level suite perfect for guests or multi-generational living. Step outside to discover your own collection of private retreats. Enjoy seamless indoor/outdoor living with four separate balconies and two expansive rooftop outdoor spaces, offering a tranquil escape above the city. The exterior grounds are a true backyard oasis, anchored by a sparkling heated pool and hot tub for year-round relaxation, alongside the zen-like ambiance of a custom koi pond. Practical luxury is paramount here; the property features three separate driveways and a heated garage, ensuring unparalleled convenience for multiple vehicles. Built with enduring cement block and brick construction, this two-story colonial combines modern structural integrity with timeless appeal. Located with easy access to the LIE for a streamlined commute to Manhattan and Long Island business districts, and zoned for the esteemed Queens School District 26. This is a unique opportunity to acquire a new-construction masterpiece where every detail.. From the private en-suites and rooftop terraces to the heated amenities.Elevates the concept of luxury living. Showings are strictly by private appointment
931579
Residential - Single Family, Colonial
6
5 Full/1 Half
2004
Queens
0.16
Acres
Public Water
Block, Brick
Public Sewer
Loading...
The scores below measure the walkability of the address, access to public transit of the area and the convenience of using a bike on a scale of 1-100
Walk Score
Transit Score
Bike Score
Loading...
Loading...

