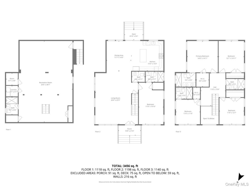
Welcome To 1035 Glen Lane - A Stunning Brand New Construction Colonial Offering Modern Luxury And Exceptional Craftsmanship. This 4,500 Square Foot Home Sits On A 70x100 Lot Within The Franklin Square School District. Featuring 5 Spacious Bedrooms, 5 Full Bathrooms, And 1 Half Bath, Every Detail Was Designed With Elegance And Functionality In Mind. The Home Showcases A Full Finished Basement With Laundry Room, Storage, And Full Bath, Along With A 1-Car Detached Garage. Inside, Enjoy Tile Flooring On The Basement And First Level, Red Oak Hardwood Upstairs, 9-Foot Ceilings, And European Custom Solid Doors And Windows. The Gourmet Kitchen And Baths Highlight Custom Tile Work And High-End Finishes Throughout. Additional Features Include A Rheem Hot Water Heater, Goodman Central Air And Forced Heat System, 50-Year Architectural Roof, New Pavers, And An In-Ground Sprinkler System. A Truly Exceptional New Build Ready To Impress!
933496
Residential - Single Family, Colonial
5
5 Full/1 Half
2025
Nassau
0.1601
Acres
Public Water
Frame, Stucco
Public Sewer
Loading...
The scores below measure the walkability of the address, access to public transit of the area and the convenience of using a bike on a scale of 1-100
Walk Score
Transit Score
Bike Score
Loading...
Loading...

